詳しくはこちらをご覧ください。
お申し込みの際は「かごしまの家「住助(じゅうすけ)」を見た」とお伝えください!
■期間限定モデルハウス■
2023年10月 国分松木モデルハウスの完成を先行し、販売受付開始します!お問い合わせはお早めに!
価格 :2,580万(税込)
構造 :木造2階建て
場所 :霧島市国分松木町
むだなく、かしこく、私たちらしく。
“ちょうどいい”が見つかる。Lodina(ロディナ)
29坪 | 3LDK
延床面積:96.9㎡(29.3坪)|1F:48.4㎡(14.6坪)2F:48.4㎡(14.6坪)

あなたに“ちょうどいい”家をもっとたのしく簡単に。
アイフルホームの規格型住宅「Lodina(ロディナ)」は、高品質でありながら低価格。
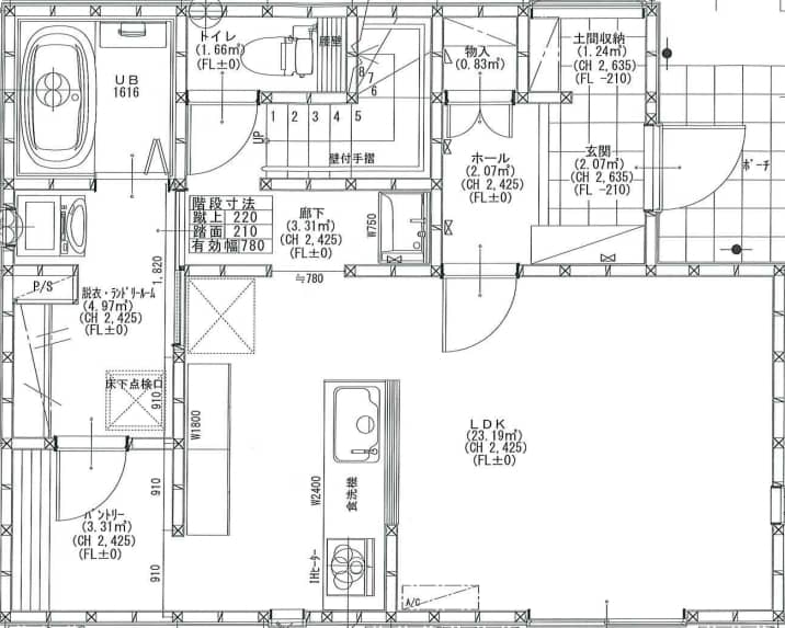
【1階間取り】

\見どころポイント/
①階段
家族とのつながりを大切にし、リビングを介して、2階に上がれるように階段を設置。帰宅後は、家族と顔を合わせてから部屋に行くことでコミュニケーションがより充実した暮らしを実現。
②パントリー
キッチンに併設したパントリーは、缶詰や調味料はもちろん、日用品雑貨まで収納できる便利な収納スペースです。
③家事ラク動線
共働きや子育て家族の忙しい日常をサポート。水廻りに便利なぐるぐる回れる動線は家族の負担を軽減し、家事をよりラクに行うことができます。
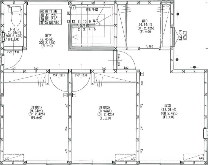
【2階間取り】

\見どころポイント/
①居室
プライベートスペースは全部屋ゆったり6帖以上。
②トイレ
2階にもトイレを設置し、通勤前や通学前のトイレの混雑を解消。忙しい朝もスムーズに過ごすことができます。また、就寝時にもトイレのたびに1階に下りる必要がありません。
オールLIXILの使いやすい設備
▶家事ラクを叶えるシステムキッチン
食器を洗う・拭く手間が省ける食器洗い乾燥機付きキッチン。
さらに、対面キッチンを採用したことで、料理をしながら、リビングにいる家族の様子をうかがうことができます。

※画像はイメージです。
▶高性能バスルーム
断熱浴槽は、お湯の温度を長時間キープし、最後のひとりまであたたかな入浴を楽しむことができます。さらに、浴室乾燥機が付いているため、洗濯物も干すことが可能。また、冷ヤッとしない、汚れも落としやすい床でいつも清潔な状態を保つことができます。

※画像はイメージです。
▶使い勝手のよい洗面台
独立した洗面コーナーは、お風呂に入っている人を気にせずに、誰もが好きな時に気兼ねなく使うことができます。

※画像はイメージです。
▶お手入れ簡単なフチなし形状のトイレ
頑固な水アカや汚れが落ちやすいアクアセラミックを採用。
フチを丸ごとなくした便器は、お手入れが簡単です。

※画像はイメージです。
快適な暮らしを実現する断熱仕様
▶ハイグレードな断熱仕様を採用

地震に強い安全な家をご提供
▶実物大実験により安全性の高さを実証
アイフルホームは、阪神・淡路大震災クラスの大きな揺れと、その余震を想定した実物大実験を防災科学技術研究所にて行い、地震に対する高い安全性を実証しました。
▶「耐震等級3」相当の耐震性能を実現
アイフルホーム加盟店が耐震設計マニュアルと構造設計CADシステムにより、設計するすべてのプランの壁量、壁の配置バランス、接合強度などの耐震性能チェックを重ね、より安全性の高いプランをつくります。
さらに株式会社LIXIL住宅研究所にて「耐震等級3」相当の構造チェックを行い「構造チェック結果報告書」を発行します。
大切な住まいを守る充実の各種保障とアフターメンテナンス
▶安心の保証が充実しています!

気になる方はお気軽にお問い合わせください!
